- 梅田の貸事務所・賃貸オフィス【BE】
- 西天満の賃貸事務所
- 大和地所南森町ビル(旧:新日本曾根崎) 5階 2号室
大和地所南森町ビル(旧:新日本曾根崎) 5階 2号室
【物件番号】53182
西天満エリアの賃貸事務所
入居初期費用(税別)
| 敷金 | 6ヶ月 |
|---|---|
| 仲介手数料 | 429,374円 |
月額賃料(税別)
| 賃料 | 429,374 円 |
|---|---|
| 共益費 | 148,060 円 |
※別途消費税が必要です(敷金・保証金以外)
![]()
| 種別 | 貸事務所(物件番号:53182) |
|---|---|
| 物件名 | 大和地所南森町ビル(旧:新日本曾根崎) |
| 所在階 | 5階部分 2号室 |
| 住所 | 大阪市北区西天満5-1-9 |
| 最寄駅 | 堺筋線 『
南森町 』
2 分
東西線 『 大阪天満宮 』 4 分 谷町線 『 東梅田 』 10 分 |
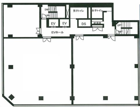
| 契約面積 | 74.03 坪/ 244.73 ㎡ |
| 敷金 | 6ヶ月 |
| 解約引 | スライド |
| 賃料 | 総額 429,374 円 (税別)・坪単価 5,800 円/坪 (税別) |
| 共益費 | 総額 148,060 円 (税別)・坪単価 2,000 円/坪 (税別) |
| 月額合計 | 総額 577,434 円 (税別)・坪単価 7,800 円 (税別) |
▲記載条件は募集価格です。条件交渉など、詳細においてはお問い合わせ下さいませ。
| 構造 | 鉄骨鉄筋コンクリート造 9階建 /地下 1 階 |
|---|---|
| 築年数 | 1972/1 (リニューアル: 1998/01 ) |
| 営業マンのコメント | 南森町エリアのランドマークオフィス! 大阪・国道1号線に面した視認性のある賃貸事務所ビルです。 |
















