福島から徒歩2分の第一住建福島駅前ビル

物件詳細

第一住建福島駅前ビル 3階 フロア号室

【物件番号】48827

エリアの賃貸事務所

入居初期費用(税別)

敷金 3ヶ月
礼金 500,520円
仲介手数料 500,520円

月額賃料(税別)

賃料 500,520 円
共益費 41,710 円

※別途消費税が必要です(敷金・保証金以外)

私達がここから条件交渉致します

お電話でのお問合せ 0120-882-207 06-6263-0057

  • 24時間使用可
  • 空調(冷暖房)
  • 機械警備
  • オートロック(インターホン付)
  • 管理人
  • 男女別トイレ
  • シャワートイレ
  • エレベーター
  • 光ケーブル
  • OAフロア
  • 駐車場
  • 駐輪場
  • このページを印刷
  • お問い合わせリストに追加
  • この物件にお問い合わせ
種別 事務所・店舗(物件番号:48827)
物件名 第一住建福島駅前ビル
所在階 3階部分 フロア号室
住所 大阪市福島区福島7-3-18
最寄駅 環状線 『 福島 』 2 分
東西線 『 新福島 』 3 分
四ツ橋線 『 西梅田 』 10 分
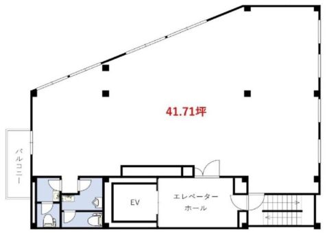
契約面積 41.71 坪/ 137.89 ㎡
敷金 3ヶ月
礼金 1ヶ月
賃料 総額 500,520 円 (税別)・坪単価 12,000 円/坪 (税別)
共益費 総額 41,710 円 (税別)・坪単価 1,000 円/坪 (税別)
月額合計 総額 542,230 (税別)・坪単価 13,000 (税別)

▲記載条件は募集価格です。条件交渉など、詳細においてはお問い合わせ下さいませ。

構造 鉄骨造  6階建
築年数 2020/3 【新耐震基準】 
営業マンのコメント 隠れ家的なオフィスビル必見です。
大阪環状線 福島駅徒歩2分 東西線・大阪メトロ四ツ橋線 西梅田駅利用可能 ワンフロアワンテナント賃貸物件

第一住建福島駅前ビルの所在地周辺

06-6263-0057 0120-882-207営業時間:午前9:30~午後7:00 定休日:日曜・祝日

物件写真

物件図面

大阪エリアの貸事務所サイト賃貸オフィスサービス 本町エリア貸事務所専門サイト 本町Be 心斎橋エリア貸事務所専門サイト 心斎橋Be 大阪貸店舗BE

物件の内見・詳細な資料をご希望の方はお気軽にお問い合わせください

06-6263-0057 0120-882-207  営業時間:午前9:30~午後7:00 定休日:日曜・祝日 メールでのお問い合わせはこちら

早くて丁重な対応に自信アリ!お客様の安心をお約束いたします